米兰体育
业务咨询:13885122331
液压升降平台,液压货梯,悬臂吊,电动平板车
首 页
走进黔力
新闻动态
产品展示
电动单梁起重机
电动双梁起重机
悬臂吊
电动平板车
米兰体育-米兰milan(中国)
您所在位置:
贵州黔力起重机械设备有限公司
>
产品展示
>
电动平板车
电动单梁起重机
电动双梁起重机
悬臂吊
电动平板车
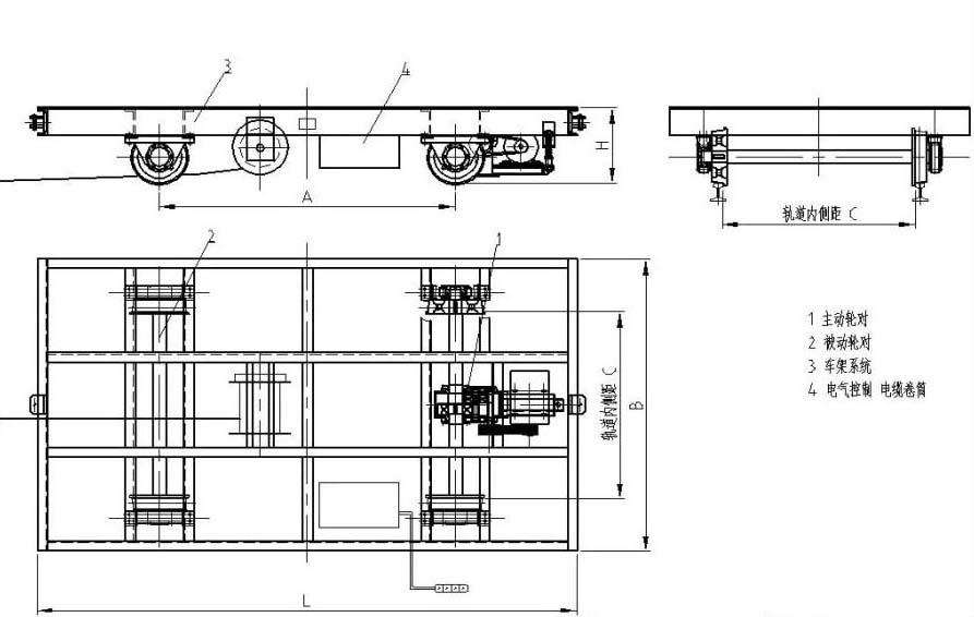
200T电动平板车
电动平车产品平面图纸
电动平车支持定做厂家直销
厂家直销电动平车
1-300T电动平板车支持定做
1